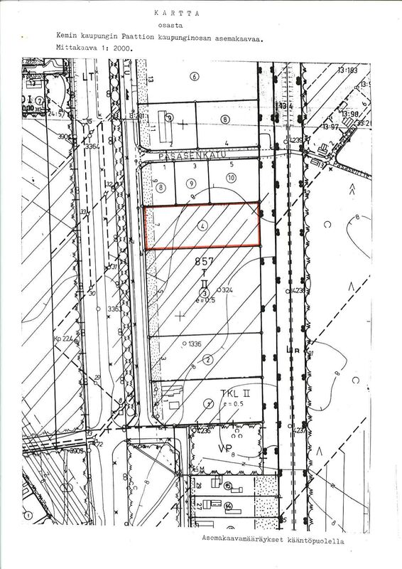
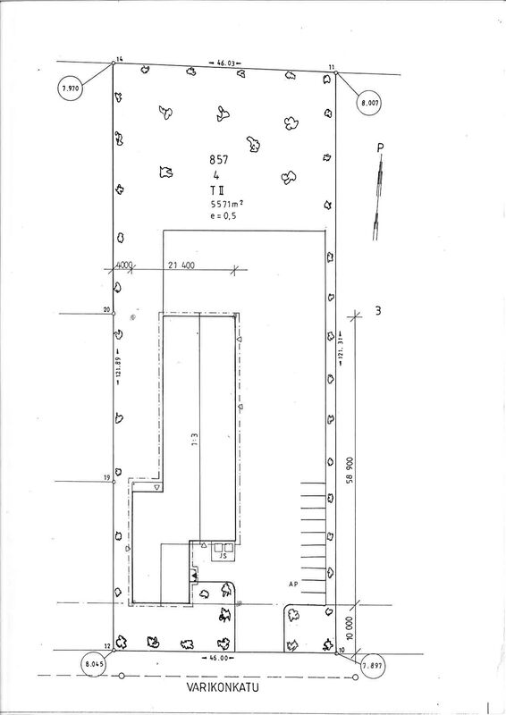
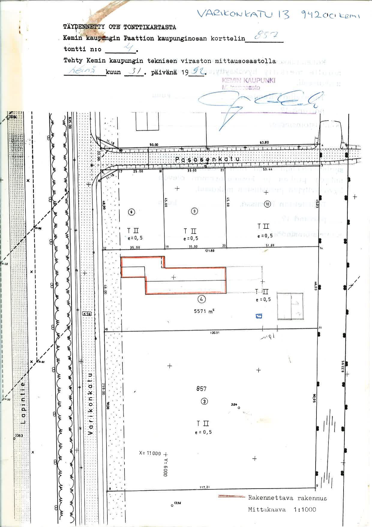
Myydään teollisuushalli joka on tällä hetkellä tekstiiliteollisuuden käytössä. Sijainti ja tontti ovat erinomaiset. Rakennusoikeutta jäljellä noin 1500 km2. Kaavanmukainen käyttötarkoitus tontilla = T.
Lisätiedot ja esittely Jukka Ruskola LKV p. 040 8459581 
Kohdetta myy

Lapin Arvokiinteistöt OyY-tunnus: 2252918-3Rovakatu 13 LT 4
96100 Rovaniemitoimisto@lapinarvokiinteistot.fi+358 50 311 7746
96100 Rovaniemitoimisto@lapinarvokiinteistot.fi+358 50 311 7746
Esittely
Kohteen seuraavaa esittelyajankohtaa ei ole tiedossa
Perustiedot
1375289
21070343
Kemi, Paattio
Varikonkatu 13
94200 Kemi
Varikonkatu 13
94200 Kemi
Tuotantotila
Ei
Omistusasunto
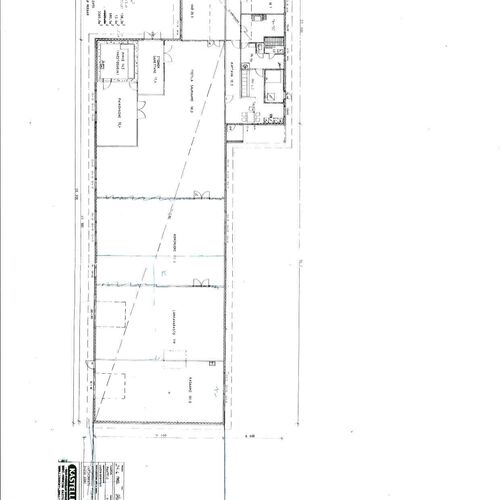
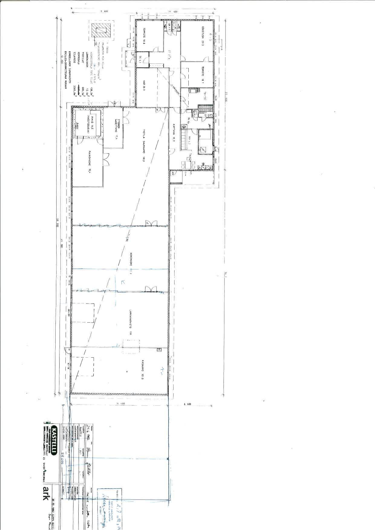
Teollisuushalli
1 228 m²
1 228 m²
Myyjän ilmoituksen mukaan pinta-ala 1228 m²
1/1
1993
Sopimuksen mukaan
Hinta ja kustannukset
690 000 €
690 000 €
561,89 € / m²
Laskettu velattomasta myyntihinnasta.
Laskettu velattomasta myyntihinnasta.
1 555 € / v
Lisätiedot
Asunnossa on sauna
Sähkökiuas
Sähkökiuas
Hyvä
Ei tiedossa
Öljy
Lämmönjakotapa: vesikiertoinen patterilämmitys
hyvä
Lämmönjakotapa: vesikiertoinen patterilämmitys
hyvä
Kunnan
Kunnan
Koneellinen tulo, koneellinen poisto
Antenni
Asunnon tilat ja materiaalit
Pääasiallinen rakennusmateriaali: Puu
Varusteet: suihku
Seinien pintamateriaali: kaakeli
Lattian pintamateriaali: laatta
Seinien pintamateriaali: kaakeli
Lattian pintamateriaali: laatta
WC-tilojen määrä: 2
Katto: Harjakatto
Katon pintamateriaali: Pelti
Katon kunto: Tyydyttävä
Katon pintamateriaali: Pelti
Katon kunto: Tyydyttävä
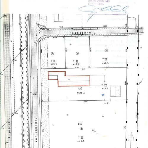
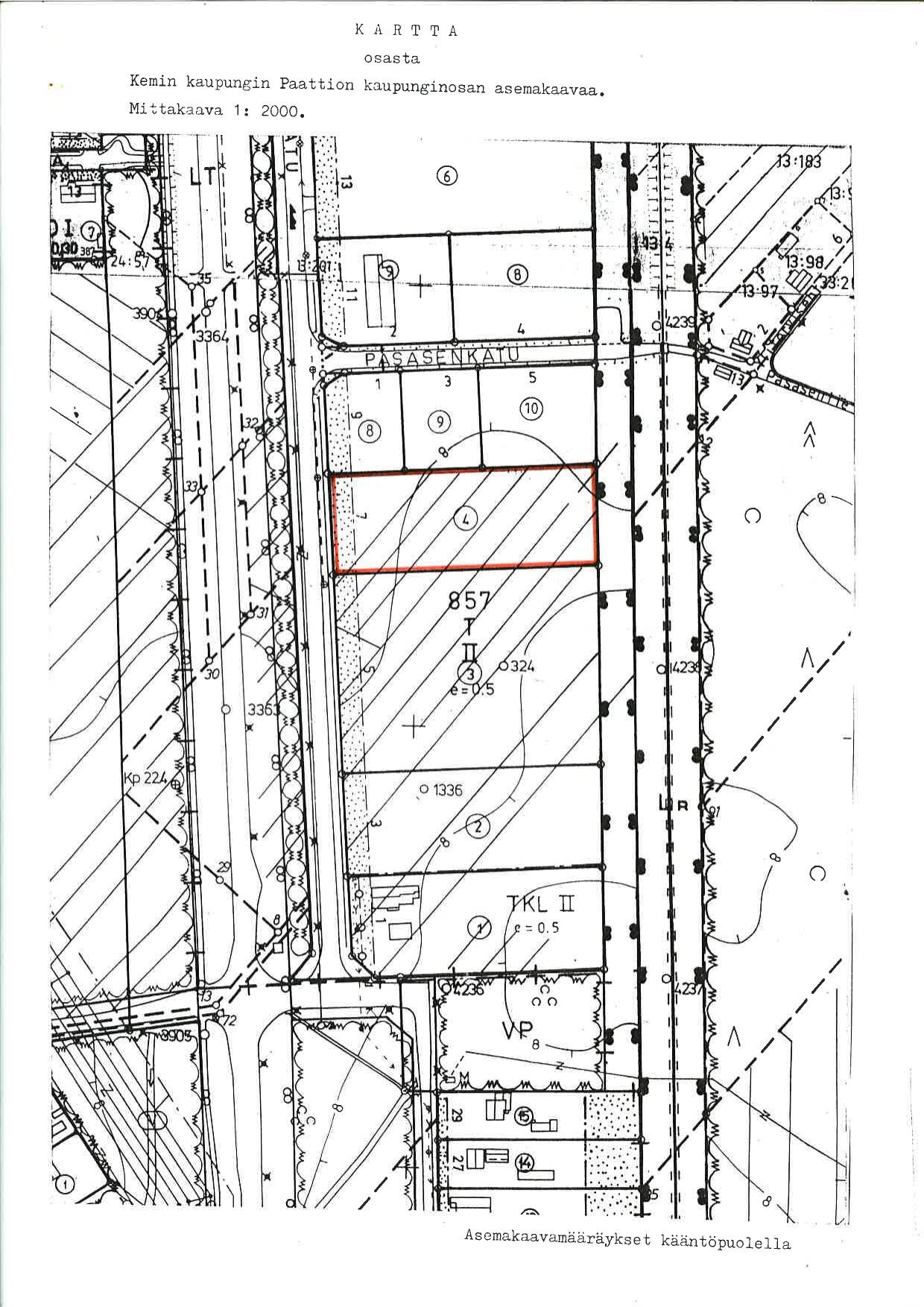
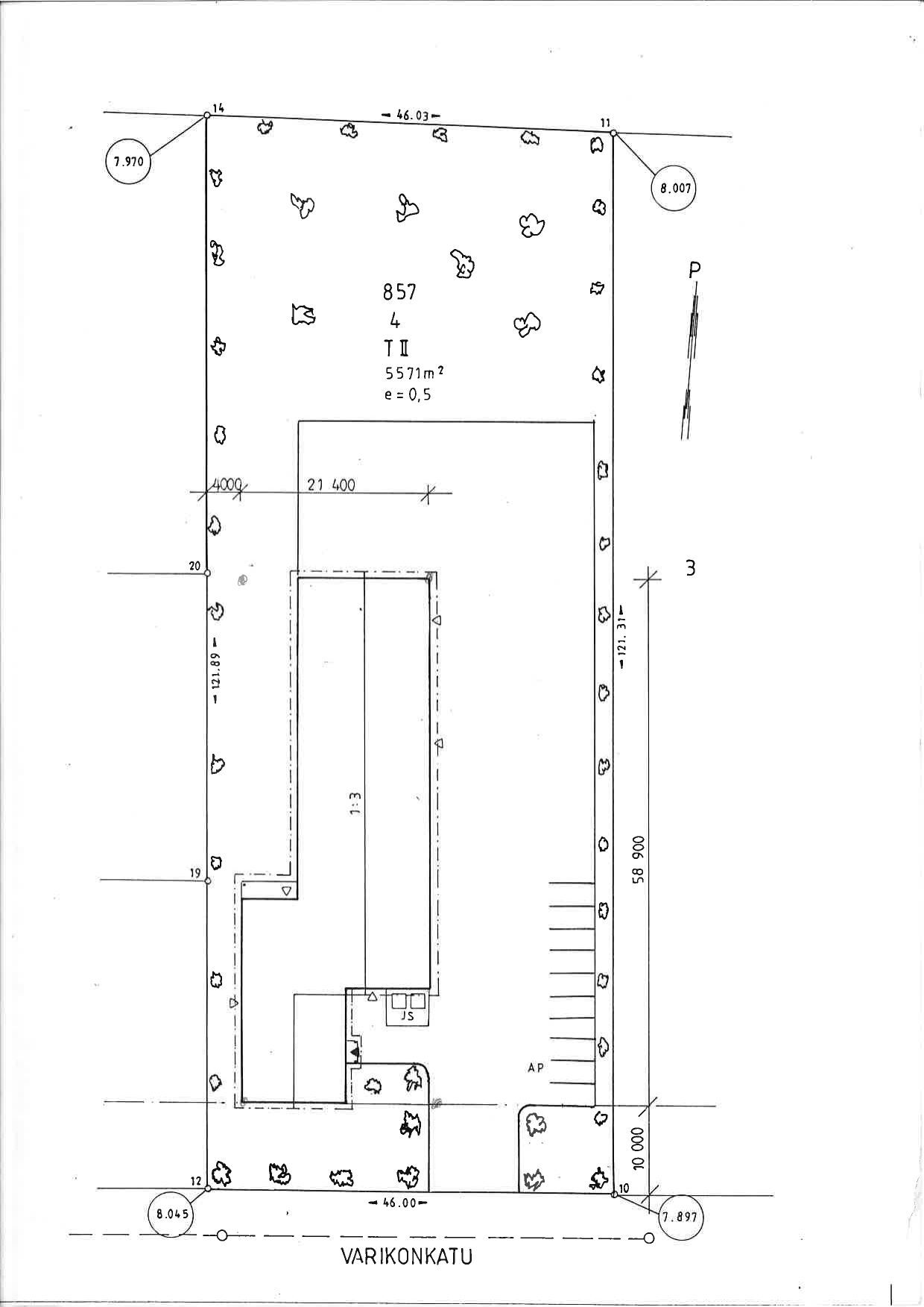
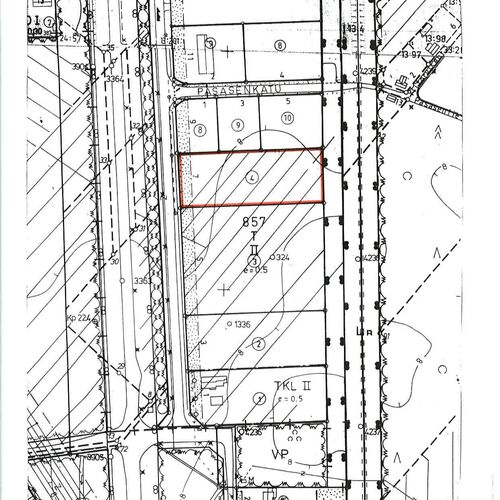
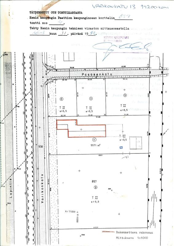
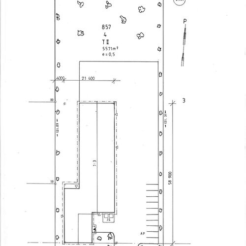
Tontin lisätiedot
240-8-857-4-L1
5 571 m²
Tasamaatontti
Vuokratontti
2 117 € / v
2 117 € / v
30.12.2030
Kemin
Kemin kaupunki
Asemakaava
0,50
Kyllä
Muut lisätiedot
Vesi- ja viemäriliittymät









